Preliminary Remodel Plans

Here are the preliminary plan and elevation sketches (2/11/96) for the remodel. The master suite was drawn with exercise equipment; these are currently thought to go in the now-former breakfast room. The TV will go away. Interior walls do not reach the ceiling. The shower area will be enclosed with glass block walls. The closet near the ex-Nordic Flex will be extended to the window. The seating area next to the bed goes where the exercise equipment is drawn.

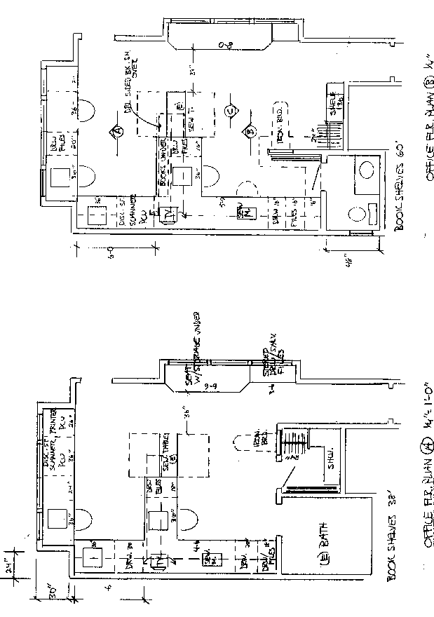
The study has been sketched in two options: leaving the master bath and adding a bay window; and squishing the bath and adding the bay. A third option of no bay is not shown. All depends on $$!